Appartamento 1 locali, Milano (MI)

Via Fontana 1 V Giornate Milano (MI)
1.150 € 1 locali 40 mq 1 piano

Descrizione

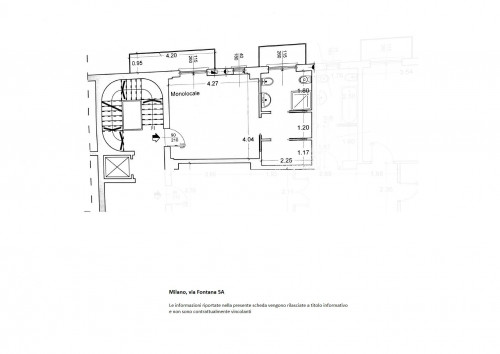
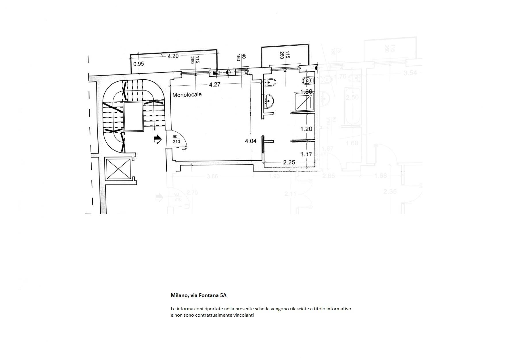
Monolocale arredato a pochi passi dal Tribunale di Milano, zona Piazza V Giornate.

In via tranquilla, residenziale e servitissima disponiamo di monolocale pied à terre completamente arredato posto al piano primo in palazzo con servizio di portineria (la mattina dalle 9:00 alle 12:30). Servito da ascensore, dotato di aria condizionata e con riscaldamento centralizzato con valvole contaconsumi. Composto da soggiorno con cucina a vista completa di elettrodomestici e divano-letto, balconcino, disimpegno con armadiatura su misura per contenere la lavatrice, cabina armadio e bagno dotato di doccia e secondo balconcino. Ideale per liberi professionisti che orbitano su Milano. Libero subito. Contratto a persona fisica in cedolare secca. Disponibile video nella scheda. Contratto di locazione 4+4 con cedolare secca, cauzione di tre mesi e pagamento del canone trimestrale anticipato.

I nostri contatti
Cell: 351 964 22 99 (attiva anche chat WhatsApp)
E-mail: info@whatandif.com

(Il compenso per la mediazione a carico del conduttore è pari al 15% più IVA, calcolato sul primo canone annuo).

Video

Posizione

Planimetria

Richiedi informazioni su questo immobile
RIF: 171

Caratteristiche

MQ
40.00
Locali
1
Bagni
1
Giardino
Privato
Ascensore
1
Riscaldamento
Centralizzato con contabilizzatore di calore
Spese condominiali mensili
140 €
Classe Energetica
G
Stato conservazione
Buono