Appartamento 5 locali, Monza (MB)

Via Padre Reginaldo Giuliani 10 Centro storico Monza (MB)
577.000 € 5 locali 208 mq 3 piano

Descrizione

APPARTAMENTO CENTRALISSIMO PIANO ALTO DA RISTRUTTURARE

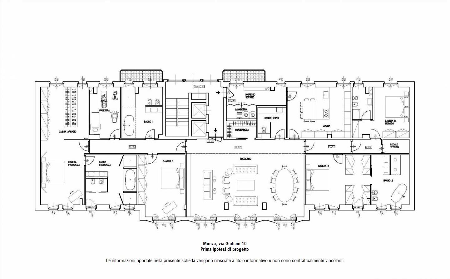
In palazzo posizionato nel pieno centro storico di Monza, disponiamo di appartamento libero su due lati completamente da ristrutturare venduto completamente ristrutturato (importo lavori di ristrutturazione secondo nostro capitolato circa € 300.000 da aggiungere alla richiesta in annuncio per il solo immobile). Posto al piano terzo e servito da portineria oltre al doppio ascensore, completo di cantina e con possibilità di box singolo nel complesso (prezzo a parte € 50.000).
Riscaldamento centralizzato a pannelli. Compravendita soggetta ad IVA.

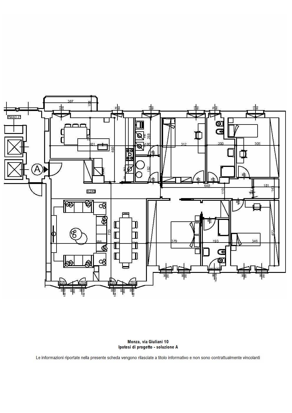
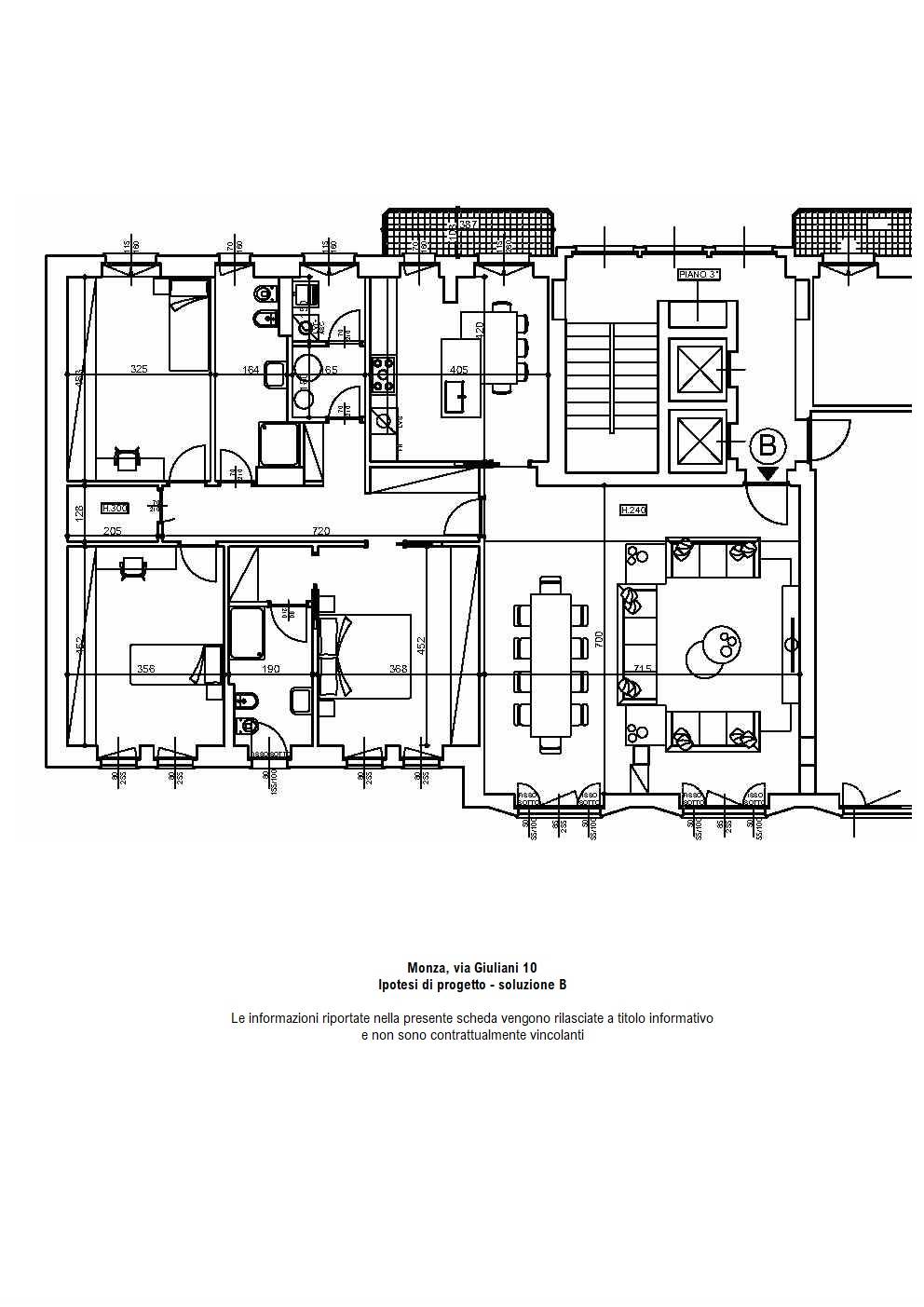
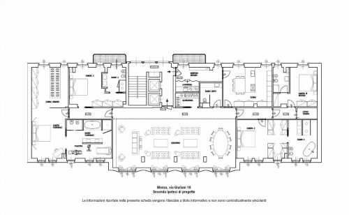
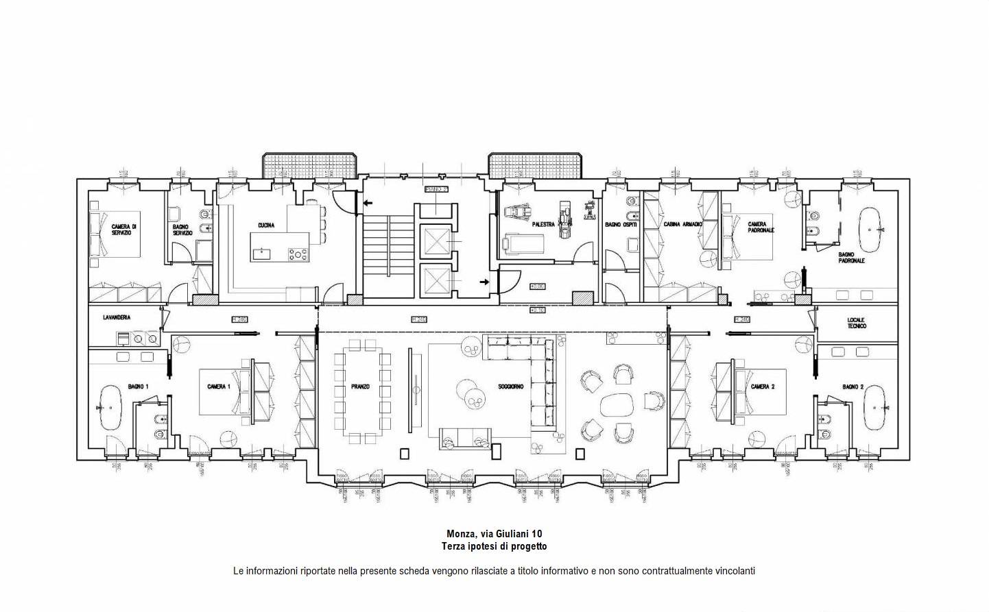
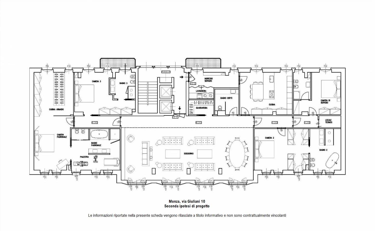
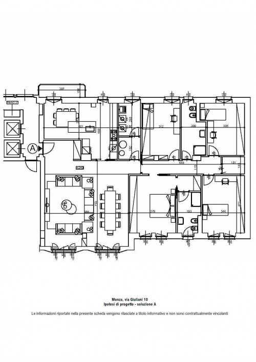
Al prezzo di € 877.000 è inclusa una completa ristrutturazione (chiavi in mano) come da progetto visionabile nella sezione planimetrie.
Si prevede una ristrutturazione completa (comprensiva di una nuova distribuzione degli spazi, nuove pavimentazioni e rivestimenti con materiali di alta qualità, impianti elettrico e idrico rinnovati e tutto l’occorrente per la realizzazione del progetto) comprensivo anche di un impianto di aria condizionata e predisposizione di antifurto. Gli infissi resterebbero a parte per lo sconto diretto in fattura per il cliente.
Possibilità di beneficiare del bonus ristrutturazioni in base alle attuali normative.
Prezzo corrispondente alla realizzazione del progetto soluzione A.
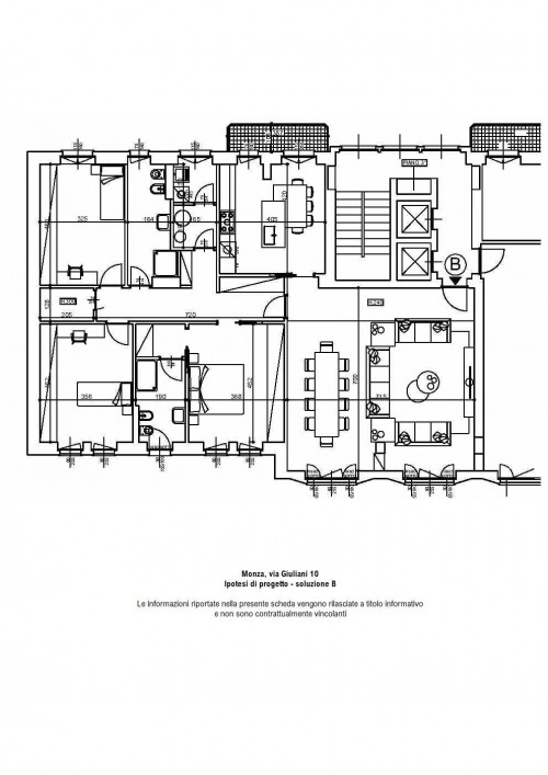
Possibilità di unire la soluzione A con la soluzione B sullo stesso piano per ottenere un appartamento di circa 390 mq.

I nostri contatti
Cell: 351 964 22 99 (attiva anche chat WhatsApp)
E-mail: info@whatandif.com

(Il compenso per la mediazione a carico di parte acquirente è pari al 3% più IVA, calcolato sul prezzo di acquisto/vendita dell’immobile).

Posizione

Planimetria

Richiedi informazioni su questo immobile
RIF: 306 - da ristrutturare

Caratteristiche

MQ
208.00
Locali
5
Camere
4
Bagni
3
Giardino
Privato
Box / Posto Auto
1
Ascensore
1
Riscaldamento
Centralizzato
Spese condominiali mensili
690 €
Classe Energetica
D
Stato conservazione
Da ristrutturare