Spazio Commerciale Polifunzionale 5 locali, Briosco (MB)

Via Gioachino Rossini 13 Briosco (MB)
2.000.000 € 5 locali 1.300 mq Su due livelli

Descrizione

Villa singola con parco di proprietà ad oggi con destinazione commerciale ad uso ristorante.

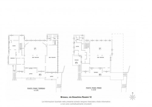
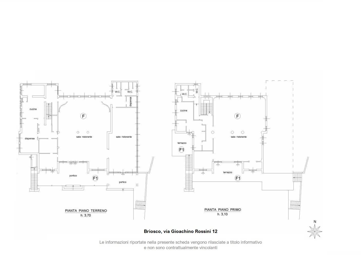
In piena Brianza, immerso in un parco privato di circa 26.300 mq, proponiamo immobile con destinazione commerciale ad oggi ad uso ristorante disposto su due livelli con locali di servizio e accessori seminterrati. Composto da due grandi sale ricevimenti al piano terra ed una molto ampia al piano primo con terrazzo oltre ai locali accessori. Immobile attrezzato e arredato, pronto per l’avvio della nuova attività. Giardino e bosco di proprietà oltre ad un’ampia area per il parcheggio. Su strada di passaggio con doppio cancello e completamente indipendente. Possibilità di trasformazione in abitazione.
Piano terra di 580 mq più porticato di circa 145 mq; piano primo di 385 mq più terrazzo di 160 mq; piano seminterrato di 460 mq.
Possibilità di acquisto con la formula affitto con riscatto.

I nostri contatti:
Cell: 351 964 22 99 (attiva anche chat WhatsApp)
E-mail: info@whatandif.com

(Il compenso per la mediazione a carico di parte acquirente è pari al 3% più IVA, calcolato sul prezzo di acquisto/vendita dell’immobile).

Video

Posizione

Planimetria

Richiedi informazioni su questo immobile
RIF: 313

Caratteristiche

MQ
1300.00
Locali
5
Bagni
5
Giardino
Privato
Riscaldamento
Autonomo
Classe Energetica
C
Stato conservazione
Buono